​UUDISKOHTEET

villa-amanda-kermaninkatu-2-sis-nk-ynti_orig
villa-amanda-kermaninkatu-2-saaristokadulta1_orig
villa-amanda-kermaninkatu-2-j-rvelt-2_orig
p1200618_orig
villa-amanda-kermaninkatu-2-sis-nk-ynti_orig villa-amanda-kermaninkatu-2-saaristokadulta1_orig villa-amanda-kermaninkatu-2-j-rvelt-2_orig p1200618_orig

Talo Lappi

◦ Sijainti : Kuopio-Käränkä
◦ Ajankohta : 2020-21
◦ Palvelu : arkkitehti- ja pääsuunnittelu ja projektinjohto

Moderni kaksikerroksinen kivitalo, jossa arkkitehtuuri asetettiin etusijalle. Talo muodostaa piharakennuksen ja pihamuurin kanssa atriumpihan. Järven puolelle suunniteltiin rauhalliset oleskelutilat uima- ja porealtaineen, rantasaunoineen ja terasseineen. Kallavesi otettiin sisä- ja ulkotilojen suunnittelussa lähtökohdaksi. Luonnonvalo suunniteltiin taloa lävistäväksi, millä saimme tiloihin laatua ja miellyttävyyttä. Rakennustyöt aloitetaan keväällä 2021.

talo-tarpio-arkkitehti-kuopio-2_orig
talo-tarpio-kuopio-arkkitehti-1_orig
talo-tarpio-kuopio-arkkitehti-2_orig
talo-tarpio-kuopio-arkkitehti-3_orig
talo-tarpio-arkkitehti-kuopio-2_orig talo-tarpio-kuopio-arkkitehti-1_orig talo-tarpio-kuopio-arkkitehti-2_orig talo-tarpio-kuopio-arkkitehti-3_orig

Talo Tarpio

◦ Sijainti : Kuopio-Rautaniemi
◦ Ajankohta : 2014-2015
◦ Palvelu : arkkitehti- ja pääsuunnittelu

Moderni yksikerroksinen puutalo, jossa erityisvaatimuksena oli energiatehokkuus, haastava paikka (teräspaaluperustukset) ja runsaan luonnonvalon hyödyntäminen. Talon päätyyn suunniteltiin suuri ja korkeudeltaan miellyttävä olohuone, johon keittiö-, ruokailu- ja parvitilat luontevasti liittyvät. Luonnonvalo suunniteltiin taloa lävistäväksi, millä saimme tiloihin miellyttävää luonnonvaloa. Rakennus on rakennettu pitkästä tavarasta paikan päällä, mistä saimme selkeitä säästöjä. Talo on toteutettu hengittävillä passiivi-luokan rakenteilla sekä ikkunoilla. Lämmön lähteenä toimii ilmalämmitys.

talo-gren-kuopio-arkkitehti-1_orig
talo-gren-kuopio-arkkitehti-2_orig
kohteetagrenkuva1_orig
talo-gren-kuopio-arkkitehti-1_orig talo-gren-kuopio-arkkitehti-2_orig kohteetagrenkuva1_orig

Talo Ågren

◦ Sijainti : Kuopio
◦ Ajankohta : 2013-2015
◦ Palvelu : arkkitehti- ja pääsuunnittelu sekä projektinjohto

Kallaveden rantatontille suunniteltu moderni uudispuutalo, autokatos ja rantasauna. Suunnittelun lähtökohtana olivat rakennuttajien pitkälle viedyt luonnossuunnitelmat, joiden pohjalta tilat ja rakenteet suunniteltiin yhteistyössä toimiviksi sekä käytännöllisiksi. Rakentaminen toteutettiin työurakkana kappaletavarasta, jolloin lopputuloksesta saatiin edullisempi ja laadukas

talo-s-is-nen-sis-kuva_orig
talo-s-is-nen-ikkunasovitus_orig
talo-s-is-nen-julkisivu-etel-n_orig
talo-s-is-nen_orig
talo-s-is-nen-sis-kuva_orig talo-s-is-nen-ikkunasovitus_orig talo-s-is-nen-julkisivu-etel-n_orig talo-s-is-nen_orig

Talo Säisänen

◦ Sijainti : Kuopio
◦ Ajankohta : 2013-2014
◦ Palvelu : arkkitehti- ja pääsuunnittelu

Pienelle kaupunkitontille sovitettu moderni uudishirsirakennus, jossa tilat on suunniteltu tiukkaan mutta avaruus ja valoisuus huomioiden. Kuvassa näkyvä porrastakka suunniteltiin tilan säästämiseksi. Lisäksi suunnittelun teemoina olivat puun luonnollisuus, käsityön elävä jälki, Japanilainen arkkitehtuuri ja harmonia. Kuvassa näkyvä ikkunan liitos on suunniteltu minimalismin hengessä ja Honkarakenteen painumattoman hirsirakenteen mahdollistamana.

koivula-1_orig
koivula-2_orig
koivula-3_orig
koivula-4_orig
koivula-1_orig koivula-2_orig koivula-3_orig koivula-4_orig

Kesäkeittiö Koivula

◦ Sijainti : Savo
◦ Ajankohta : 2014-2015
◦ Palvelu : arkkitehti- ja pääsuunnittelu sekä työnjohto

Moderni kesäkeittiö, jonka suunnitteluideologia pohjautuu 1960-luvun lopun arkkitehtuuriin sekä Kaija ja Heikki Sirenin suunnittelemaan loma-asuntoon Lingonsön saarella. Kesäkeittiön suunnittelussa pääpaino oli luonnollisissa materiaaleissa, rakenteiden arkkitehtonisuudessa ja järvimaiseman huomioimisessa.

kohdetalonylundkuva1_orig
kohdetalonylundkuva2_orig
kohdetalonylundkuva3_orig
kohdetalonylundkuva4_orig
kohdetalonylundkuva1_orig kohdetalonylundkuva2_orig kohdetalonylundkuva3_orig kohdetalonylundkuva4_orig

Talo Nylund

◦ Sijainti : Kuopio
◦ Ajankohta : 2013-2015
◦ Palvelu : arkkitehti- ja pääsuunnittelu

Moderni yksikerroksinen puutalo, jossa erityisvaatimuksena oli järvimaiseman ja runsaan luonnonvalon hyödyntäminen. Talon keskelle suunniteltiin suuri ja korkeudeltaan miellyttävä olohuone, johon keittiö-, ruokailu- ja eteistilat luontevasti liittyvät. Rakennus on rakennettu pitkästä tavarasta paikan päällä, mistä saimme selkeitä säästöjä. Talo on toteutettu hengittävillä rakenteilla ja lämmön lähteenä toimii lämpökaivo ja maalämpöpumppu. Suuret ikkunat ovat passiivitalo -luokkaa.

kohdetallikoivulakuva1_orig
kohdetallikoivulakuva2_orig
kohdetallikoivulakuva3_orig
kohdetallikoivulakuva4_orig
kohdetallikoivulakuva1_orig kohdetallikoivulakuva2_orig kohdetallikoivulakuva3_orig kohdetallikoivulakuva4_orig

Talli Koivula

◦ Sijainti : Savo
◦ Ajankohta : 2013-2014
◦ Palvelu : arkkitehti- ja pääsuunnittelu sekä projektinjohto

Arkkitehtonisesti arvokkaan 1970-luvun huvilan yhteyteen sovitettu uusi varasto-tallirakennus, jonka suunnittelussa on huomioitu erityisvaatimustaso ja maastoon sekä miljööseen sovittaminen.

luonnos-jolkkonen-3_orig
talo-jolkkonen-asema_orig
talo-jolkkonen-etelaan-2_orig
talo-jolkkonen-lanteen-2_orig
luonnos-jolkkonen-3_orig talo-jolkkonen-asema_orig talo-jolkkonen-etelaan-2_orig talo-jolkkonen-lanteen-2_orig

Talo Jolkkonen

◦ Sijainti : Kuopio
◦ Ajankohta : 2011-2013
◦ Palvelu : arkkitehti- ja pääsuunnittelu sekä projektinjohto

Kolmekerroksinen betonirakenteinen uudisomakotitalo, jossa maisema ja asuinmukavuus ovat avainasemissa. Talo edustaa modernia ja energiataloudellista suunnittelua. Talon energialuokka tulee olemaan A ja lämmitysmuodoksi tulee maalämpö. Talo valmistui kesällä 2014.

img-0125_orig
img-0094_orig
img-4557_orig
img-4559_orig
img-0125_orig img-0094_orig img-4557_orig img-4559_orig

Talo Mattila

◦ Sijainti : Kuopio
◦ Ajankohta : 2008-2011
◦ Palvelu : avaimet käteen

Maastoon ja maisemaan istutettu moderni uudisomakotitalo, joka on toteutettu passiivitalon rakenteilla. Järvelle avautuvat suuret lasipinnat antavat asuinmukavuutta ja kadun puolen ”selkä” suojaa kylmältä pohjois- ja itätuulelta. Suunnittelun lähtökohtana ovat olleet maisema, maasto, energiatalous ja asuinmukavuus. Ulkoseinien ikkuna- ja oviliitokset on toteutettu arkkitehdin omaa innovaatiota hyödyntäen.

talo-jukarainen-itaan-2_orig
talo-jukarainen-pohjoiseen-2_orig
talo-jukarainen-sisakuva_orig
talo-jukarainen-lanteen-2_orig
talo-jukarainen-itaan-2_orig talo-jukarainen-pohjoiseen-2_orig talo-jukarainen-sisakuva_orig talo-jukarainen-lanteen-2_orig

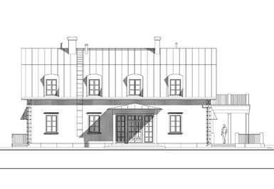
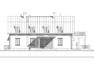
Talo Jukarainen

◦ Sijainti : Tampere
◦ Ajankohta : 2005
◦ Palvelu : arkkitehti- ja pääsuunnittelu

Kolmekerroksinen betonirakenteinen uudisomakotitalo, jossa tietoisesti tavoiteltiin 1900-luvun alun ilmettä. Tyylille uskollisesti vanha ilme ulottuu myös sisätilojen jäsentelyyn sekä yksityiskohtiin asti.